設計士と作るデザイナーズ平屋
将来の理想の暮らしも
見据えた平屋で
末永く「もっといい」暮らしを。
デザインも性能もコストも妥協しない
ユースフルの平屋
ユースフルの平屋で
理想の暮らしを叶えたお客様の声
-
他社では高くて諦めていたスペックと
唯一無二のデザインが
予算内で叶いました。高いデザイン性を保ちながら、予算内での完成度には大満足です。
何度も訪れた憧れの他社では実現できなかったことが、
ユースフルさんのおかげで現実となりました。
家に住み始めてからも、快適さと機能性、
そしてデザインの美しさに感動し続けています。 -
思いもよらなかった提案と
その設計力に感激したのを
今でも覚えています。お家を建てるなら安心かつ快適でデザインが良ければと思い、
色々な会社の施工事例やピンタレストを見て
自分の好みのお家を探していました。
その中で、私のイメージに近いお家を建ててる会社が2社あり、
その1社がユースフルさんでした。
ユースフルが叶える
-
家族の距離が自然と縮まる、
平屋という選択。家のどこにいても家族の気配を感じられる。
平屋なら、リビングを中心にした間取りで、お子様が小さい頃から大きくなるまで、
いつでも目が届き、温かく見守ることができます。
会話が自然と生まれ、笑顔があふれる暮らし。家族の絆が深まる住まいを、
平屋で叶えませんか? -
設計士と一緒につくる品のある暮らし。
素材の質感、光の入り方、風の通り道。
ひとつひとつに理由がある、無駄のない設計。
流行に流されず、永く愛されるかたちを大切に。
ユースフルの家づくりは、見た目の美しさだけでなく、
住まう人の感性に寄り添った“暮らしの質”を育てていきます。 -
子どもの笑顔が絶えない家族の癒し空間。
敷地や周辺環境を活かしながら、
動線や視線、音や温度までも設計に落とし込むことで、
心からくつろげる空間を実現。
住むほどに「この家にしてよかった」と感じられる、
そんな品のある暮らしを、あなたと一緒に描きます。
ユースフルの平屋が人気な
-
一級建築士が手掛ける
デザイン性の優れた外観一級建築士がお客様の理想に合わせて
外壁のカラーリングや素材・屋外照明・シンボルツリーなども含めたすべてをご提案。
お客様が長い間気に入って暮らしていただけるよう
洗練された意匠×機能デザインを追及しています。
-
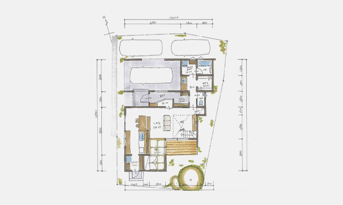
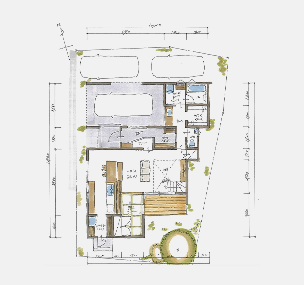
ワンフロアだから叶う
効率的で家事をこなしやすい生活動線ワンフロアを生かして家事動線をコンパクトに集約できるのも平屋の特徴です。
お客様のライフスタイルに合うよう
快適で理想的な家事動線のある間取りをご提案いたします。
-
高性能×ワンフロアの強みを
掛け合わせた
1年通して快適な暮らしユースフルの特徴である高い住宅性能は、
ワンフロアの平屋においては効果が一層高まり、
よりダイレクトに住む人の快適性や健康、省エネに繋げることができます。
-
将来を見据えた
1.5階半平屋プランも対応生活空間を1階に集約することでバリアフリーな点も平屋の特徴。
でも、「もうちょっと収納が欲しい…」という方に人気の1.5階スペース。
毎日の暮らしは1階で完結でき、1.5階はお子様の遊び場や物置スペースとして
活用できる、とても使い勝手の良い1.5階スペースを設けた
半平屋プランにも対応しています。






